Chambre
salon
Cuisine - séjour
Voir le menu Cristal Séduction +
Voir le menu Confort +
 
FORMULES CONFORT + & CRISTAL SEDUCTION +
 
EXEMPLES HEBERGEMENTS
 
Les agences vous proposeront des appartements de 2 à 6 couchages, allant du studio à l’appartement 2 ou 3 pièces. Vous trouverez des appartements tout équipés, avec des casiers à ski, le lave vaisselle (fréquemment) et autres appareils suivant les appartements.
 

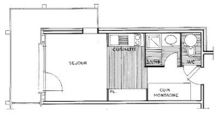
STUDIO – CABINE
Surface : 22 m², BEAU BALCON D'ANGLE SUD
- 1ER étage
- 4 Couchages
- séjour : 1 banquette gigogne,
- cabine séparée du séjour par un rideau :
 2 lits superposés,
- Salle de bains : baignoire, WC séparés,
- Exposition : sud, et ouest avec JOLIE VUE
- Équipements particuliers : TV, cocotte minute, cafetière électrique, grille pain, transats, pelle à neige...
- Literie : oreillers, couvertures...
 

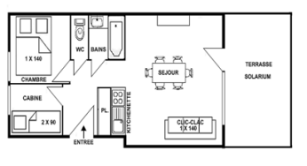
2 PIECES - CABINES
 
- Situation pratique : commerces à 100 m env,                                                        
 possibilité de chausser devant le chalet,
- Surface : 29.50 m², + BEAU BALCON SUD
- Etage : 1er,
- Couchages : 6
- séjour : 1 convertible,
- cabine : 2 lits superposés,
- chambre (petite) : 1 lit de 130,
- Salle de bains : baignoire, WC séparés,
- Exposition : plein sud avec VUE FANTASTIQUE
- Equipements particuliers : lave vaisselle, téléviseur, cocotte minute, appareil à raclette, appareil à pierrade, fer à repasser, grille pain, salon de jardin...
- Un casier à skis est à votre disposition
 

3 PIECES
 
- Les commerces sont à proximité,
 l'école de ski à 350 m,
- Pistes : Alpin, départ des pistes à 200 m,
 Fond, le domaine nordique est à 400 m env.,
- Surface : 29,80 m² env., balcon : 2,46 m²,
- Couchages : 4/6
- Séjour : 1 banquette gigogne
- Chambre : 1 lit 160,
- Cabine: 2 lits superposés 80,
- Salle de bains : baignoire, WC séparés,
- Equipements particuliers : téléviseur, lave linge, four micro onde,
 service à raclette, cafetière électrique...
- Literie : oreillers, couettes...
- Un casier à skis est à votre disposition
B to B
En hiver
Formulaire de contact
Hébergements
Accueil
Recherche
En été
Groupes
Pack Service
Nom
Prénom
Adresse
Code postal
Ville
Mail
Téléphone
Votre demande
N'oubliez pas de noter vos dates de séjour !
Effacer
Envoyer
Agence traditionnelle
SPECIALISTES DES SEJOURS "TOUT COMPRIS"
Contacts
Séjours tout compris
Hiver 2012/13 : réservez dès aujourd'hui